• Architecture
  • Graphics
  • Resume
  • Contact
Santiago Arroyave
  • Architecture
  • Graphics
  • Resume
  • Contact

Affordable Housing

FIU Studio, 2013

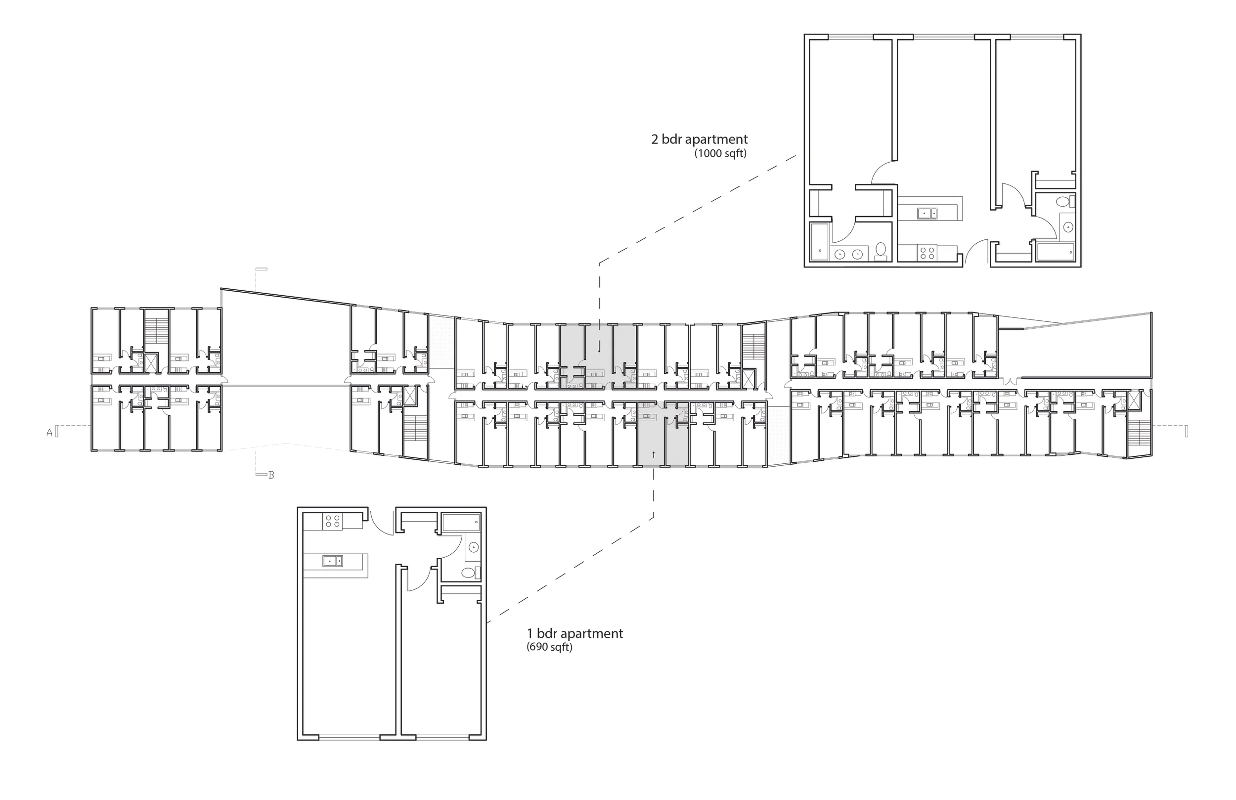
Sponsored by Pinnacle Housing Group, this project sought to create affordable housing for the elderly community in miami. Situated on a site of an existing synagogue complex, the building used a simplistic building typology to respect the existing buildings on the site. The open center of the project allows for an open area for interaction between the tenants, seeking to create an ideal living facility for the elderly population in Miami.

Santiago Arroyave_D10 Final_render 9.jpg
affordable housing_diagrams.jpg
Santiago Arroyave_D10 Final_render 1.jpg
Santiago Arroyave_D10 Final 17.jpg
Santiago Arroyave_D10 Final_render 5.jpg
typical floor plan.jpg
cross section.jpg
Santiago Arroyave_D10 Final_render 7.jpg
Santiago Arroyave_D10 Final 21.jpg

Powered by Squarespace.