• Architecture
  • Graphics
  • Resume
  • Contact
Santiago Arroyave
  • Architecture
  • Graphics
  • Resume
  • Contact

Savannah Artist Housing

FIU Studio, 2012

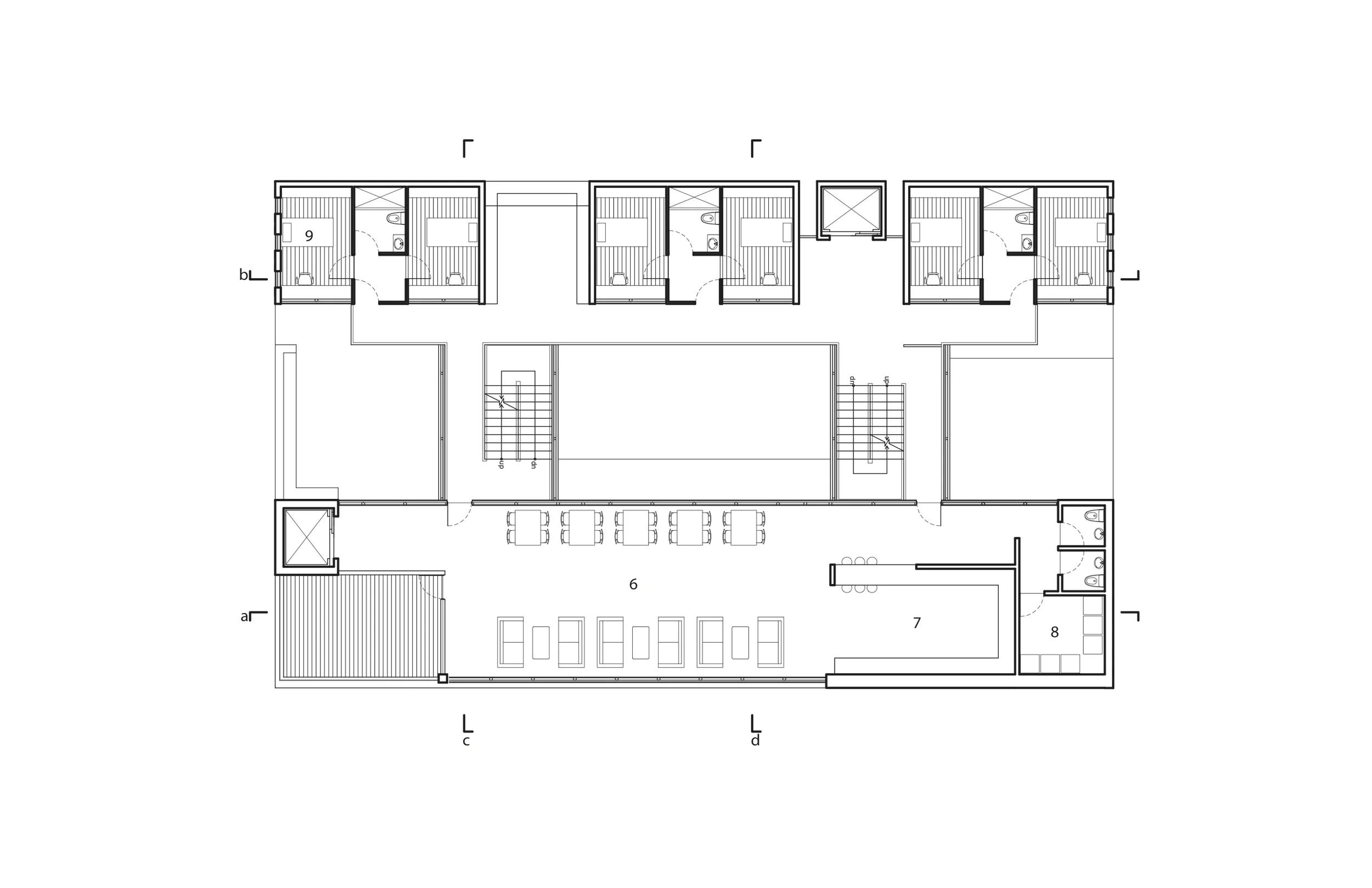
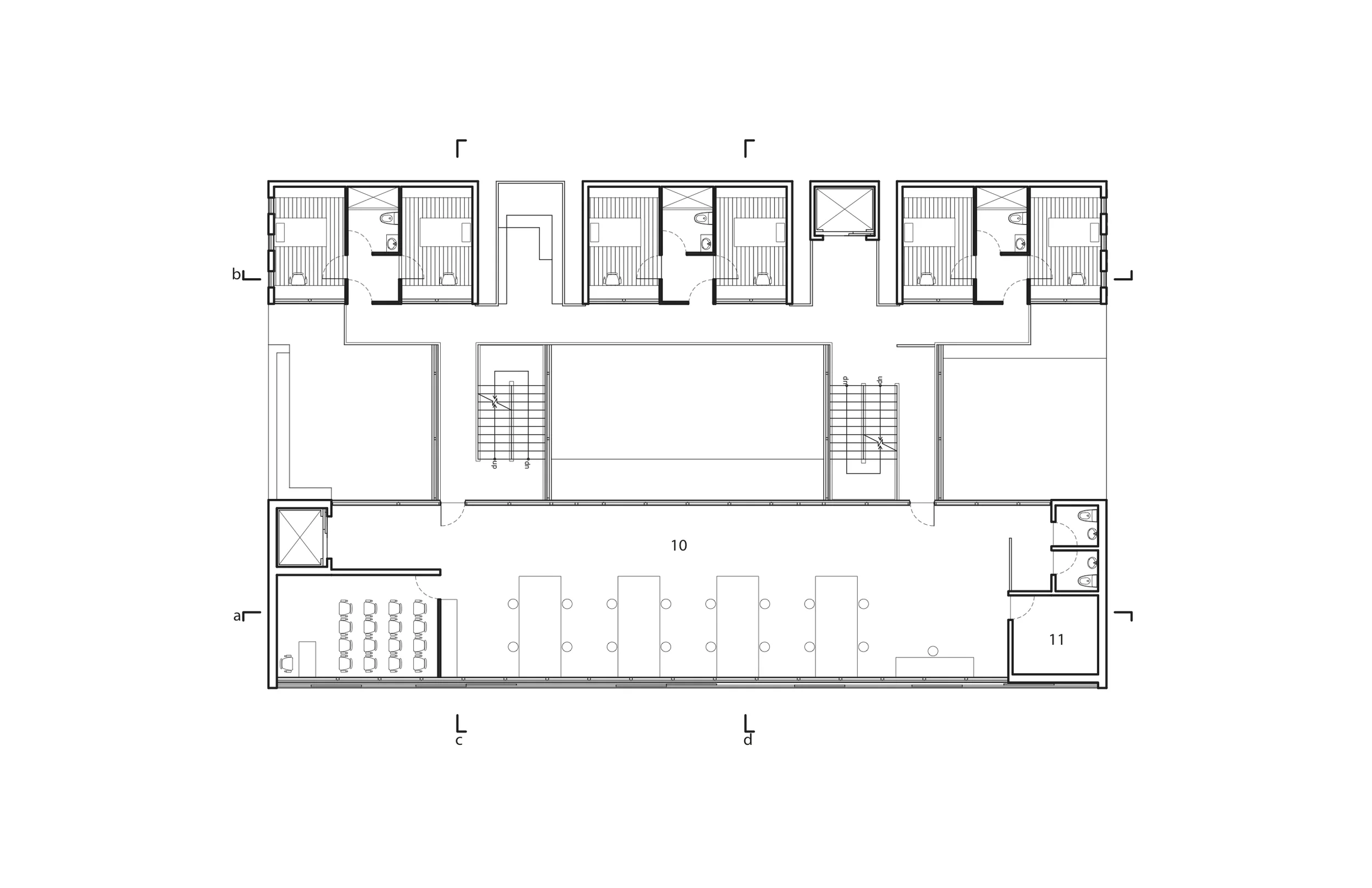
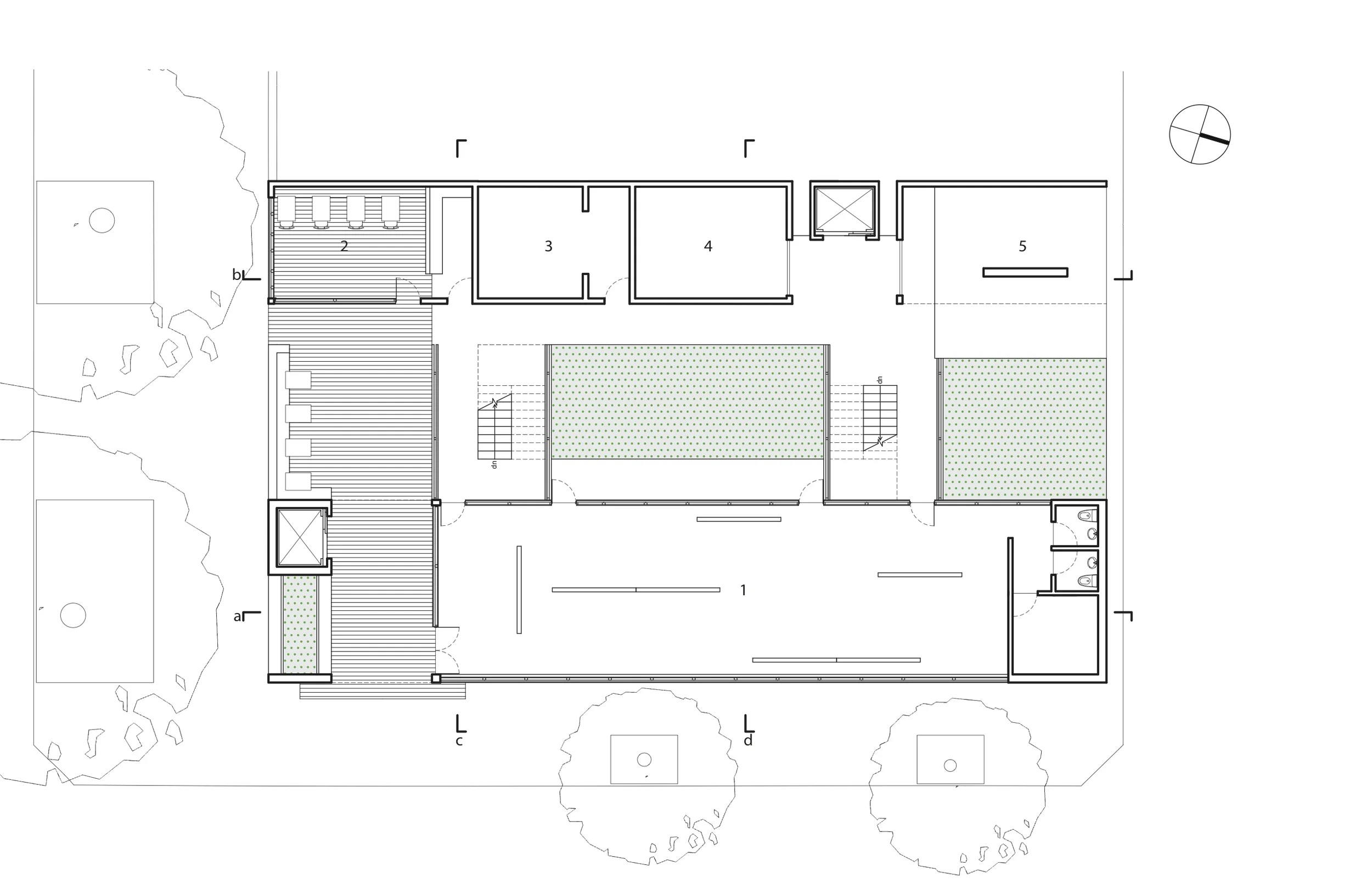
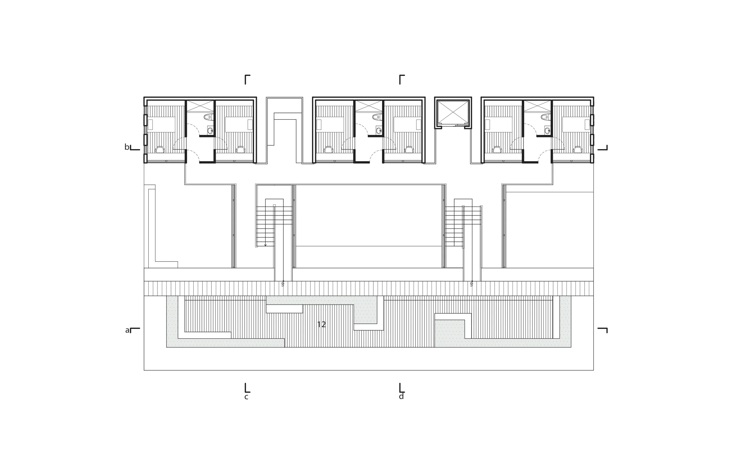
Traditionally, the residential lot of Savannah consists of a large residential house with a small carriage house in the back, joined by a garden/courtyard. This typical plan was adapted into the distribution of the project’s program. One large volume was created along the main street to house the most important and public parts of the program (art galleries, studios, etc.). Three smaller volumes, which resemble small carriage houses, where placed in the left of the site. These volumes became the dormitories for the students. This distribution allows for a clear division between public and private, but also creates a series of mediating spaces (courtyards, gardens, etc.), that allow for collective interaction at a scholarly level as well as a leisurely scale.

d6 aerial render reduced.jpg
d6 project for website DIAGRAM.jpg
d6 web 1.jpg
d6 web 2.jpg
d6 web 3.jpg
d6 web 4.jpg
d6 web 5.jpg
d6 web 6.jpg
d6 render 2 reduced.jpg

Powered by Squarespace.